Product Description
Product Lines: Hydraulic Press
- Frame rolls easily on four steel roller bearings
- Hydraulic clamp cylinders lock frame into position
- Standard roller head design allows movement of the cylinder from side to side
- All models in the Quick Selection Chart have been matched to a pump, cylinder, hoses and gauge,offering the complete package
- Roll Frame design features a stationary bed with the ability to support heavy loads
Think Safety
Manufacturer’s rating of load and stroke are maximum safe limits. Good practice encourages using only 80% of these ratings!
Image Gallery
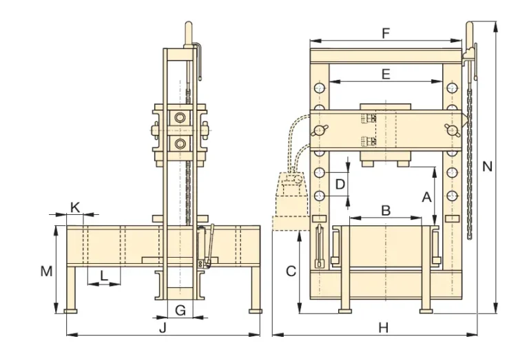
Dimension
Series Comparison
| Model Number | Capacity(T) | Distance A(mm) | Max Distance E (mm) | Cylinder Models | Stroke(mm) | Fast Forward Speed (mm/sec) | Stamping Speed (mm/sec) | Weight(kg) |
|---|---|---|---|---|---|---|---|---|
| IPR5075 | 50 | 152-942 | 730 | RR5013 | 334 | 4.1 | 3.9 | 917 |
| IPR10075 | 100 | 159-1048 | 889 | RR10013 | 333 | 7.7 | 0.7 | 1767 |
| IPR20075 | 200 | 279-1295 | 1219 | RR20013 | 330 | 5.2 | 0.5 | 4186 |




